
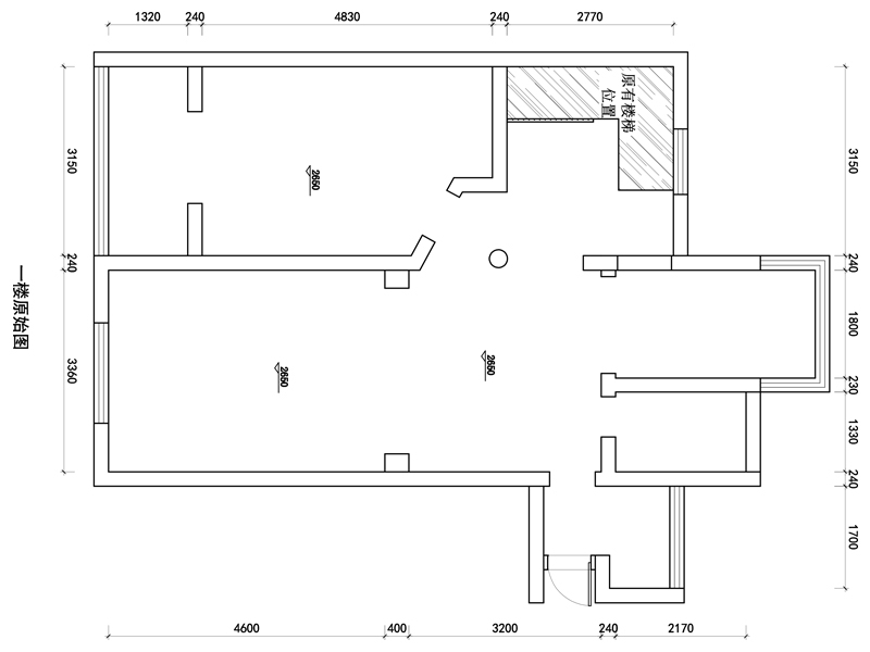
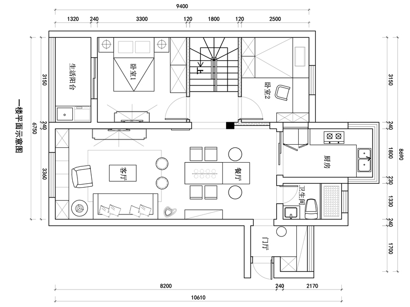
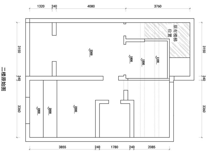
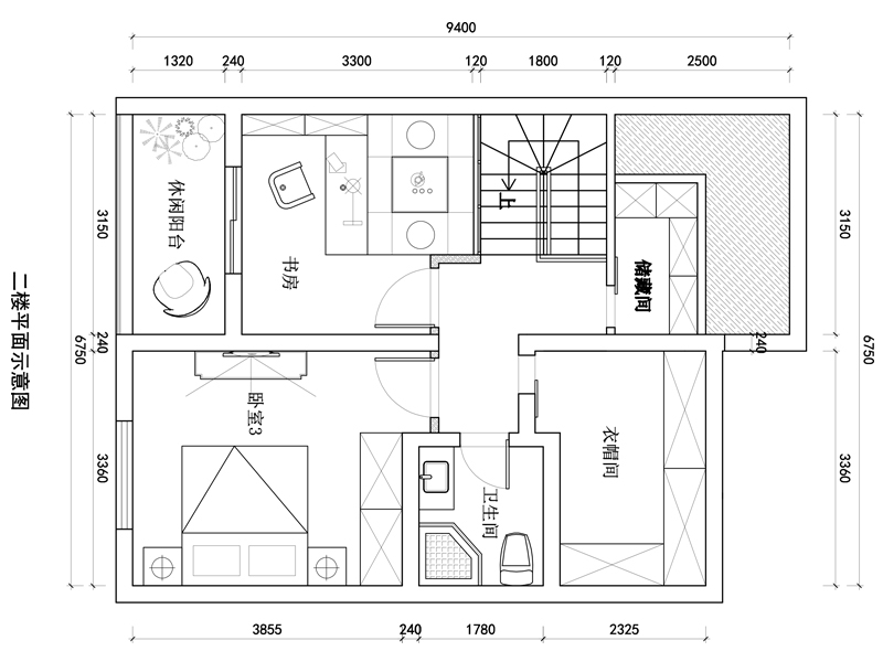
人道我居城市里,我疑身在万山中。 ——元·维则 户主是特别喜欢江南味道的一对夫妻,女主人特别喜欢苏州的韵味。整体设计风格以中式风格为主,细节处加以苏式韵味点缀,有一种将园林搬回家的感觉,整体设计将苏味融入其中并发挥到了极致,真真正正为业主量身定制的设计。 户型 Apartment|四室两厅 风格 Style|新中式风格 面积 Area|135㎡ 全包价格 All inclusive price|25万 团队Group|苏州美即装饰 地址 Address|蔡汇河头 原本的户型采光性较差,屋内显得非常昏暗,空间动态走向也相对繁琐,客厅与餐厅之间的拱门、客厅与楼梯处的立柱都显得整体空间非常压抑。 改造后户型采光极佳,南北通透,改变了原本户型的拱门造型,影藏立柱、改变楼梯位置,使其多出一个房间等等,整体改造后空间效果与功能性更加。 原始户型门比较多,房间较为松散,比较繁复。 改造后户型整个二楼较为整体,主要是主卧、书房、衣帽间。供户主夫妻二人居住。 客厅以中式家具为主,整体布局采用中式风格中典型的“对称”原则。搭配原木色的家具更具古典韵味。 沙发背景墙的挂画给整体空间增加了灵动的气息,搭配落地纱窗,增添一份闲适与宁静。 客餐厅整体采用无主灯设计,简约大气,两侧灯筒分散光源,增加格调感。 客餐厅一体,地面采用时下最流行的大理石地砖通铺,整体无分界感。 L型厨房设计更科学的利用厨房空间,灶台上方一排边柜,便于物品的拿取与储藏。原木色与白色的搭配更加自然,与客餐厅形成统一。 (实景) 主卧色调温馨,与整体风格统一,木色地板搭配原木色床头柜,自然温婉。床头的吊灯点缀,流苏的飘逸,白色纱幔的呼应,更增添几分江南韵味。 (实景) 整排置物柜增强其收纳效果。全屋无主灯设计,照明以灯筒灯带+超大落地窗的自然光,打造静谧舒适的居住空间。 (效果图与实景一比一还原) (实景) 次卧与主卧一致,简约的吊顶设计,墙面留白,衣柜内涵巨大的收纳空间,使整体空间更加简约、整洁。 床和床头柜都是原木色,质朴的自然感扑面而来,氛围感十足,与整体更加协调统一。 (效果图与实景一比一还原) 榻榻米的设计增加收纳。美观又实用。 书房整体划分为两个区域,榻榻米的休闲区和书桌的办公区,二者巧妙的结合,体现了设计师整体又统一、现代又古典的小心思。开放式阳台,增强空间感,整个房间天然的采光,使其更加通透。 (效果图与实景一比一还原) (一楼) (二楼) 浴室组合柜增加收纳,台盆底部留白便于打扫,干湿分离,更满足使用需求,原木色搭配与整体风格更加统一。 玄关的处理对二楼的楼梯做了一个隔断处理,增强其隐蔽性,并且玄关将原户型的立柱镶嵌其中,解决了户主一打难题,是整体更加和谐统一。 楼梯下方空间增强其储物功能,楼梯的整体色调以原木和白色为主,与整体空间相呼应。














(实景)









