名校联合企业
透明家装典范
18036816425
首页
装修作品
家装案例
公寓案例
别墅案例
装修故事
业主点评
精英团队
设计团队
工程团队
服务保障
无忧装修
三方监理
预约量房
投诉建议
精湛工艺
施工工艺
臻选建材
装修攻略
了解美即
企业简介
资质荣誉
联系我们
招贤纳士
企业动态
当前位置:
首页
>
装修作品
案例信息
项目名称:
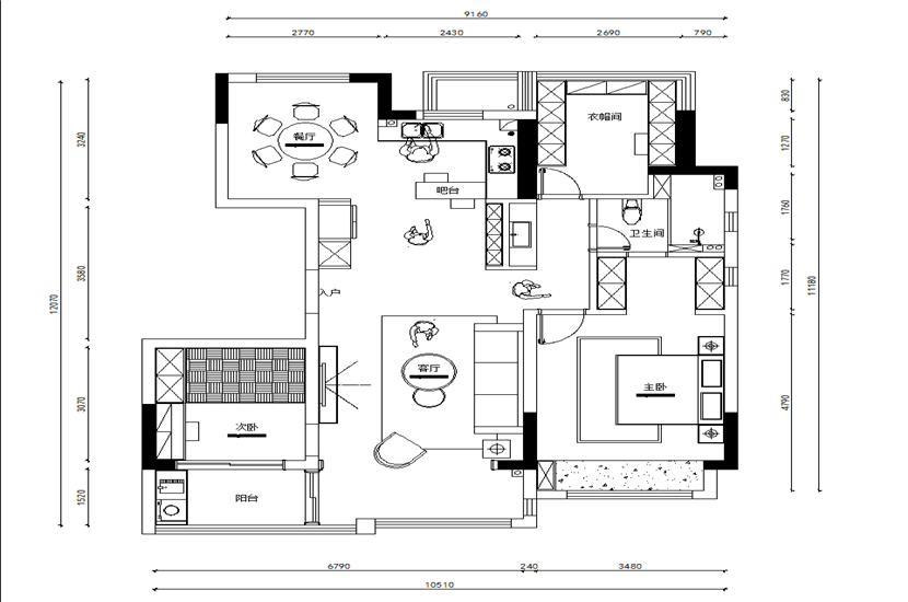
125㎡时尚又不失经典的新中式风格
面 积:
125m²
地 区:
苏州
风 格:
新中式
项目阶段:
已完工
相培
主案设计师
更多作品
马上预约
125㎡时尚又不失经典的新中式风格
新中式
区域
苏州
面积
125.00m²
为您推荐其他案例
参考过往经典案例,启发您的理想生活
135㎡现代简约
面积:135.00
户型:三室两厅
170㎡现代混搭风格凸显潮流感
面积:170.00
户型:四室两厅
132㎡北欧风格,绿意盎然的气息
面积:132.00
户型:三室两厅
免费量房
在线咨询
预约电话
18036816425
扫一扫
返回顶部